Facebook

Tweet

Help

Image 10 of 10

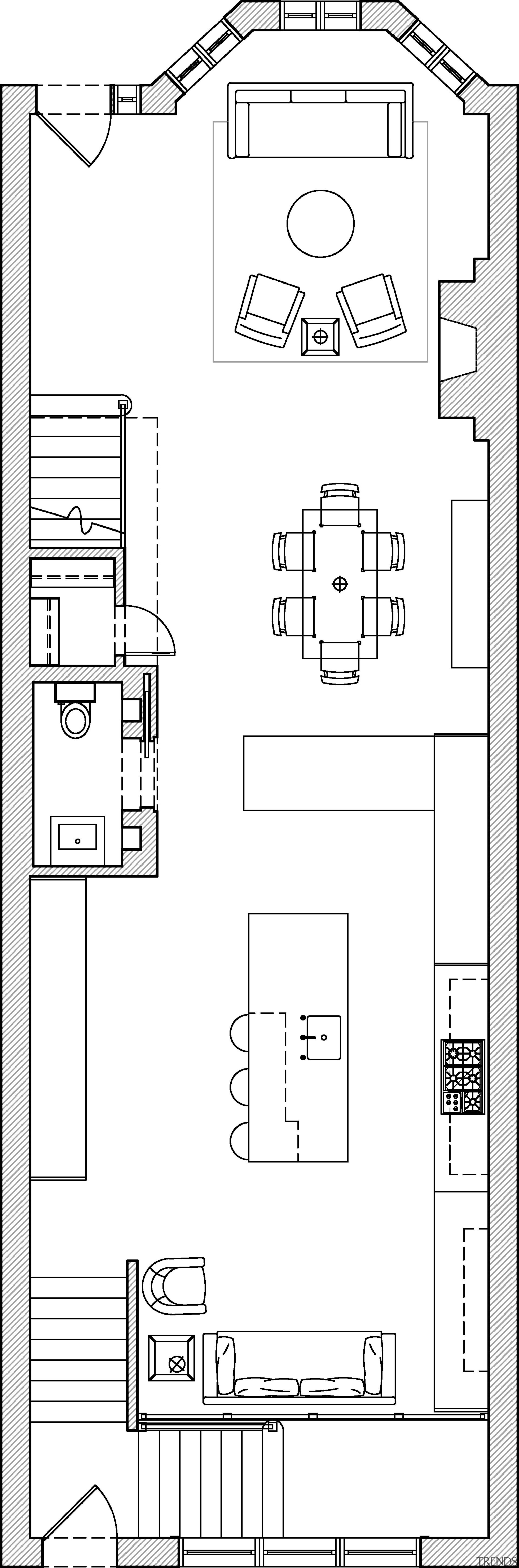
This kitchen is open to the dining area at one end and an informal living space at the other as the floorplan shows.

This kitchen is open to the dining area at one end and an informal living space at the other as the floorplan shows.

Associated Post

30 May, 2014

Home kitchen bathroom commercial design


Latest Post

29 Mar, 2026

29 Mar, 2026

29 Mar, 2026

We know the Specialists

Latest Book

TRENDS MINI COVER 4201 -

Home Kitchen Bathroom Design 

Read More