Facebook

Tweet

Help

Image 9 of 9

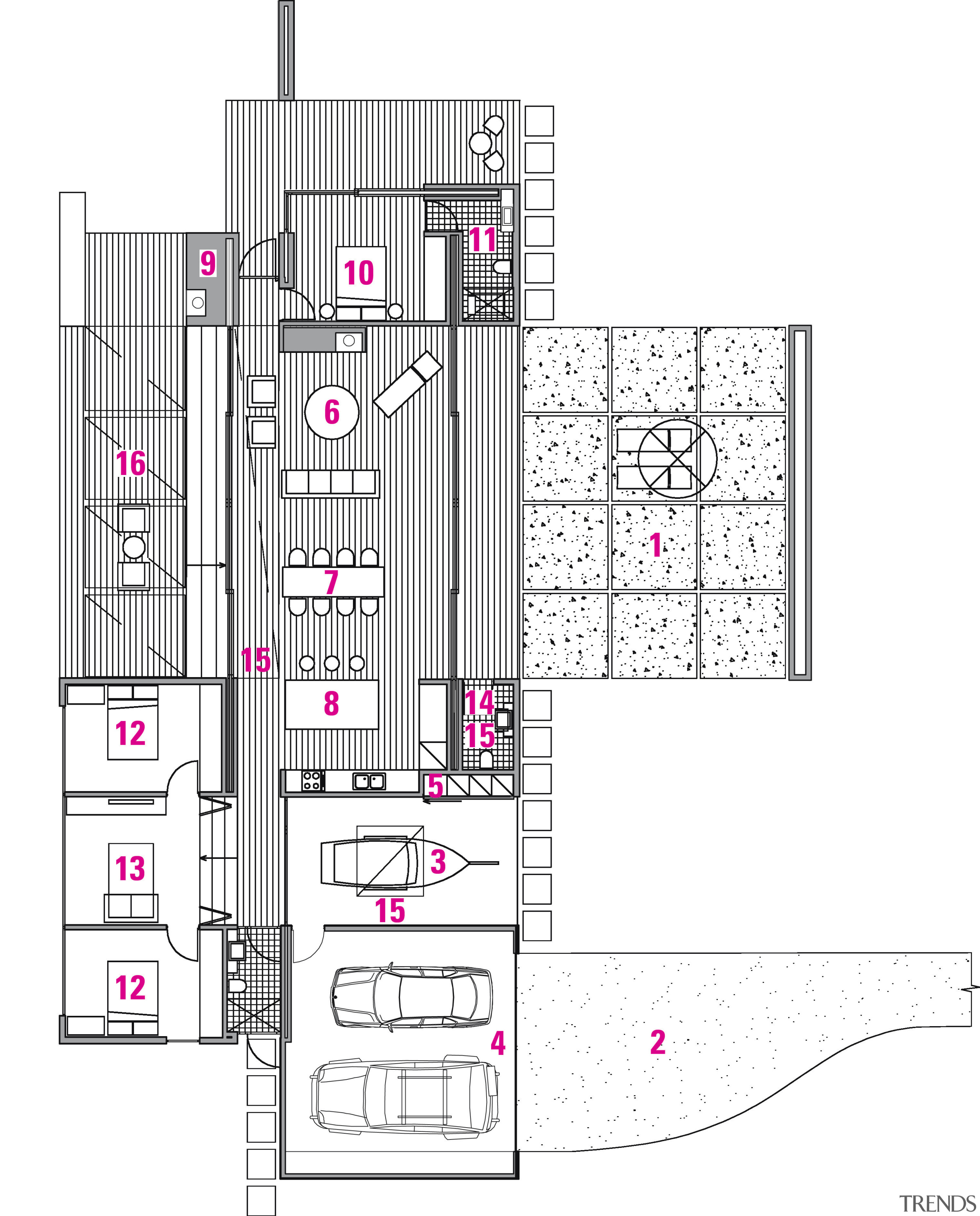
A view of the plan of the home.

A view of the plan of the home. - A view of the plan of the home. - area | design | diagram | drawing | floor plan | line | plan | product design | structure | white

Associated Post

10 Sep, 2007

Home kitchen bathroom commercial design


Latest Post

26 Apr, 2026

26 Apr, 2026

26 Apr, 2026

We know the Specialists

Latest Book

TRENDS MINI COVER 4201 -

Home Kitchen Bathroom Design 

Read More