Facebook

Tweet

Help

Image 1 of 8

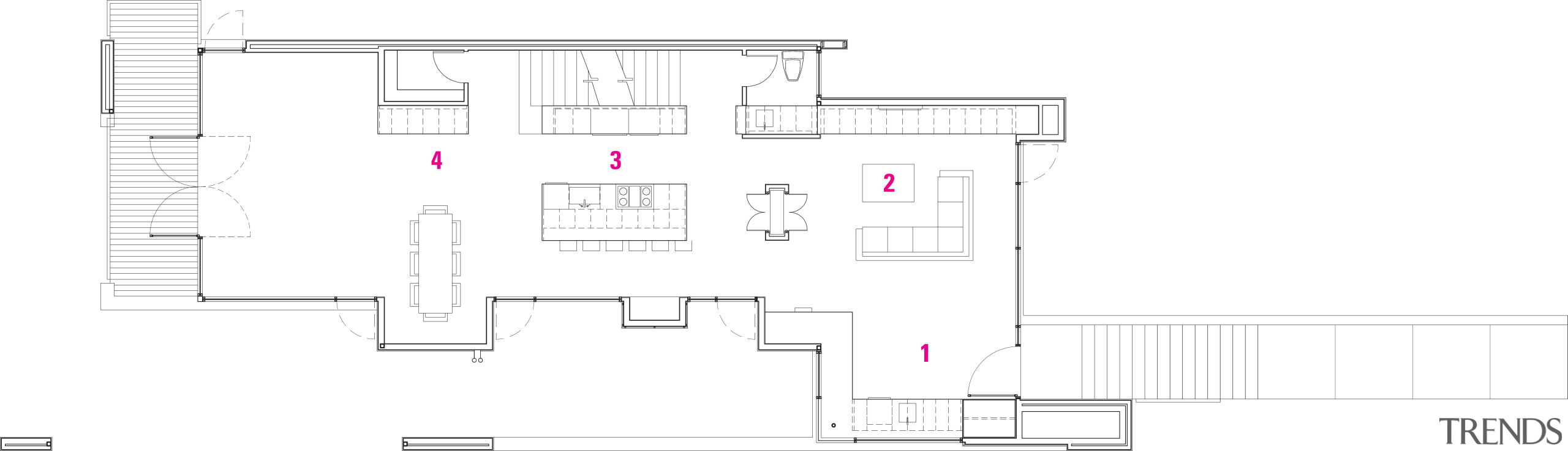
Floor plan of house.

Floor plan of house. - Floor plan of house. - architecture | area | design | diagram | drawing | elevation | floor plan | font | line | plan | product | product design | structure | text | white

Associated Post

17 May, 2011

Home kitchen bathroom commercial design


Latest Post

12 Apr, 2026

12 Apr, 2026

12 Apr, 2026

We know the Specialists

Latest Book

TRENDS MINI COVER 4201 -

Home Kitchen Bathroom Design 

Read More