Facebook

Tweet

Help

Image 18 of 20

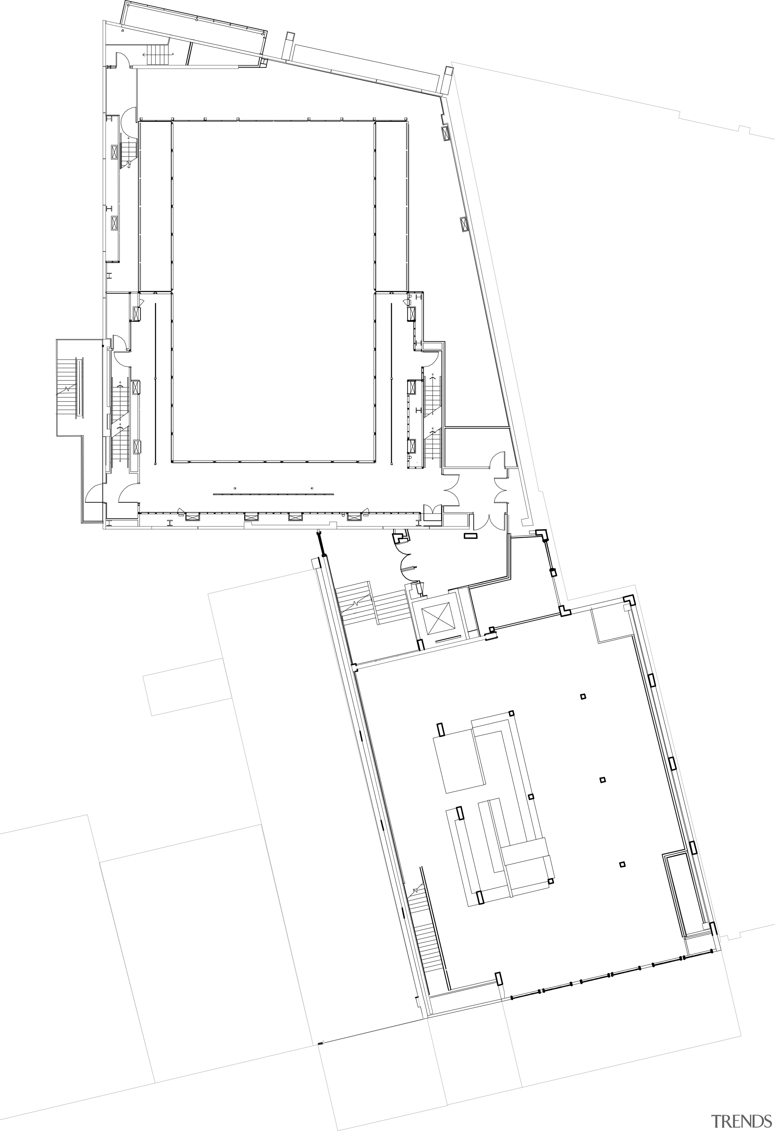
Here is a view of Auckland's Q theatre, which was designed by Cheshire Architects with Williams Ross Architects. Here is a floor plan of the building.

Here is a view of Auckland's Q theatre, which was designed by Cheshire Architects with Williams Ross Architects. Here is a floor plan of the building.

Home kitchen bathroom commercial design


Latest Post

26 Apr, 2026

26 Apr, 2026

26 Apr, 2026

We know the Specialists

Latest Book

TRENDS MINI COVER 4201 -

Home Kitchen Bathroom Design 

Read More