Facebook

Tweet

Help

Image 17 of 17

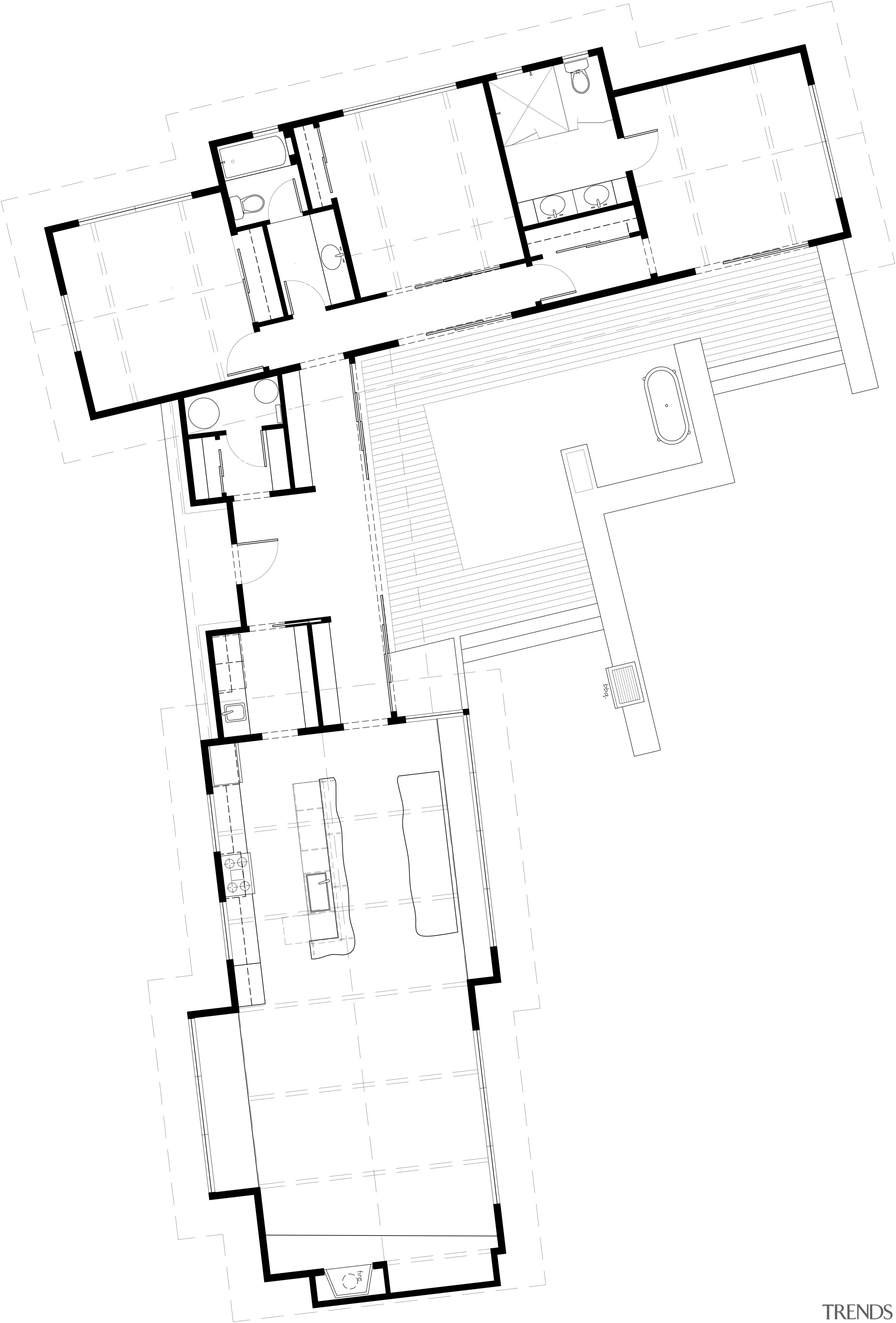
View of rural home with open plan lounge and kitchen, bedrooms, entrance way, deck area with outdoor bath and landscaping.

View of rural home with open plan lounge and kitchen, bedrooms, entrance way, deck area with outdoor bath and landscaping.

Associated Post

24 Feb, 2011

Home kitchen bathroom commercial design


Latest Post

22 Mar, 2026

22 Mar, 2026

22 Mar, 2026

We know the Specialists

Latest Book

TRENDS MINI COVER 4201 -

Home Kitchen Bathroom Design 

Read More