Facebook

Tweet

Help

Image 1 of 10

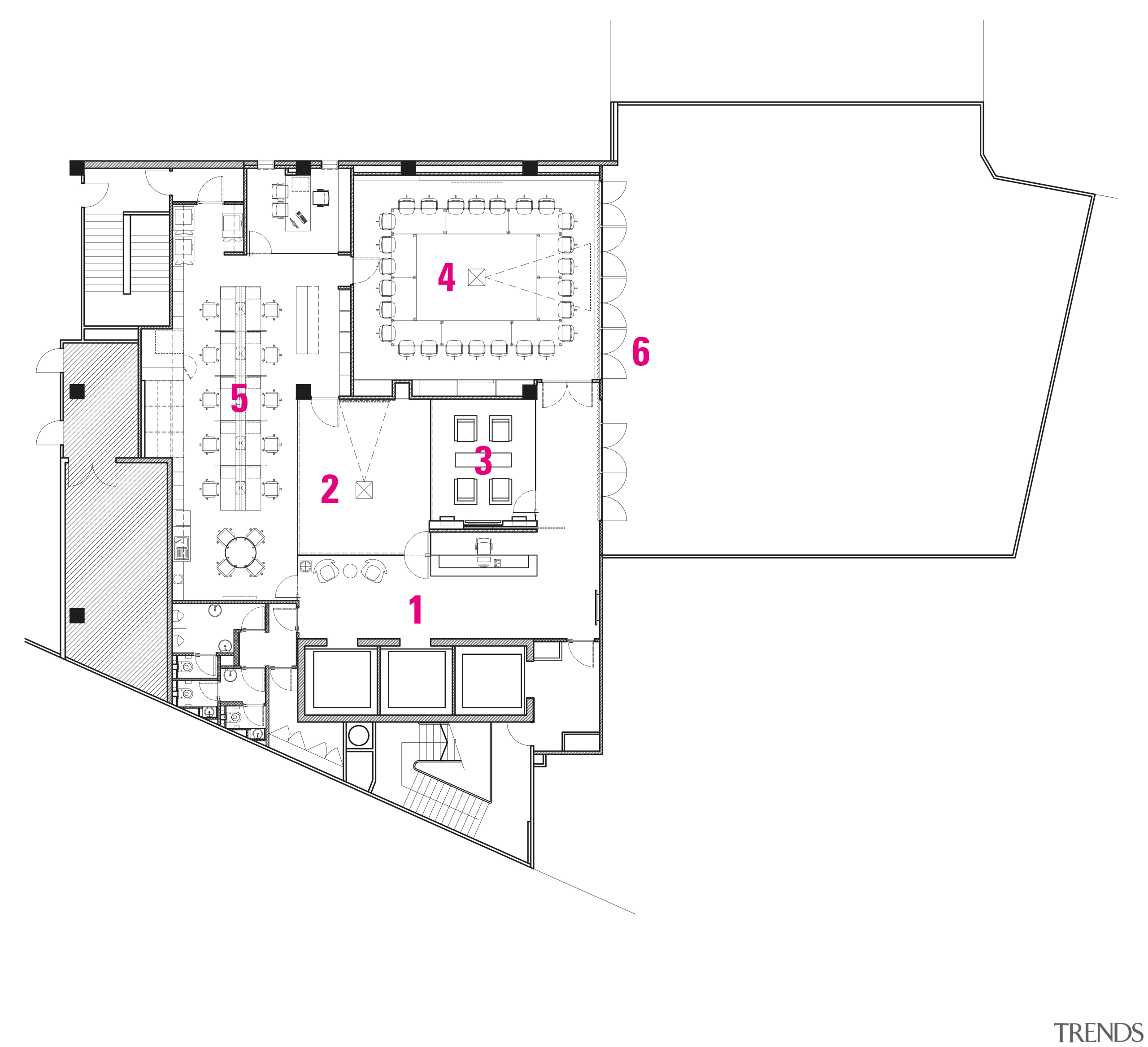
Contemporary offices of the Real Estate Develoer's association in Singapore. Floor plan. Legend: 1 entry, 2 exhibition and seminar room, 3 meeting room, 4boardroom, 5 offices, 6 roof garden.

Contemporary offices of the Real Estate Develoer's association in Singapore. Floor plan. Legend: 1 entry, 2 exhibition and seminar room, 3 meeting room, 4boardroom, 5 offices, 6 roof garden.

Home kitchen bathroom commercial design


Latest Post

15 Feb, 2026

15 Feb, 2026

15 Feb, 2026

We know the Specialists

Latest Book

TRENDS MINI COVER 4201 -

Home Kitchen Bathroom Design 

Read More