Facebook

Tweet

Help

Image 20 of 20

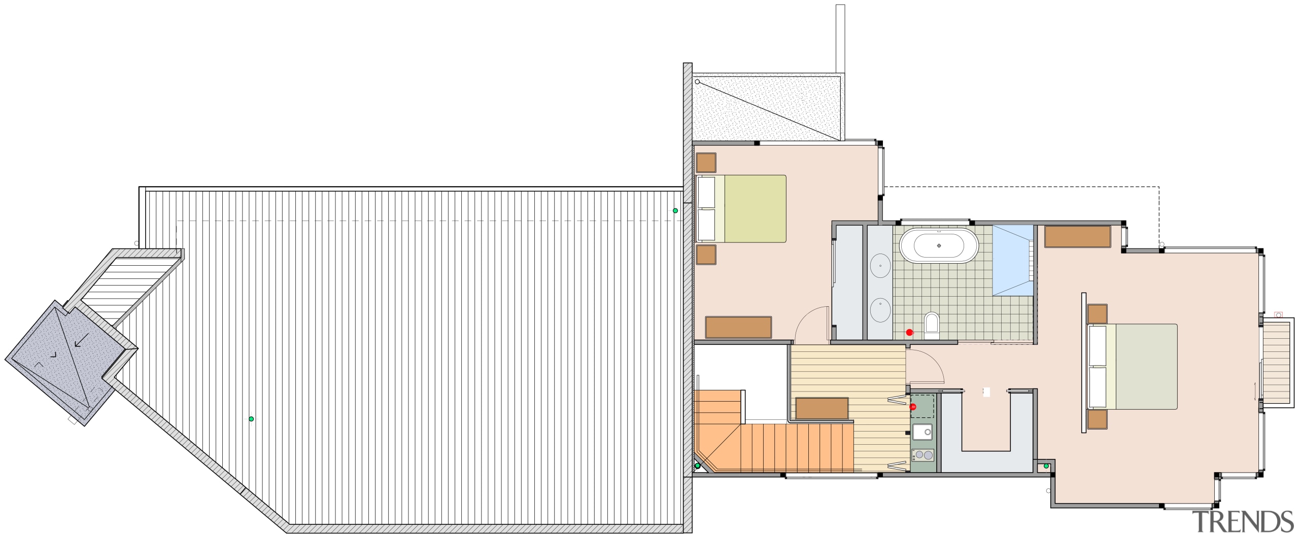
Two city townhouses designed by architect Paul Izzard

Two city townhouses designed by architect Paul Izzard

Home kitchen bathroom commercial design


Latest Post

26 Apr, 2026

26 Apr, 2026

26 Apr, 2026

We know the Specialists

Latest Book

TRENDS MINI COVER 4201 -

Home Kitchen Bathroom Design 

Read More