Facebook

Tweet

Help

Image 1 of 5

South West London Nursery Company

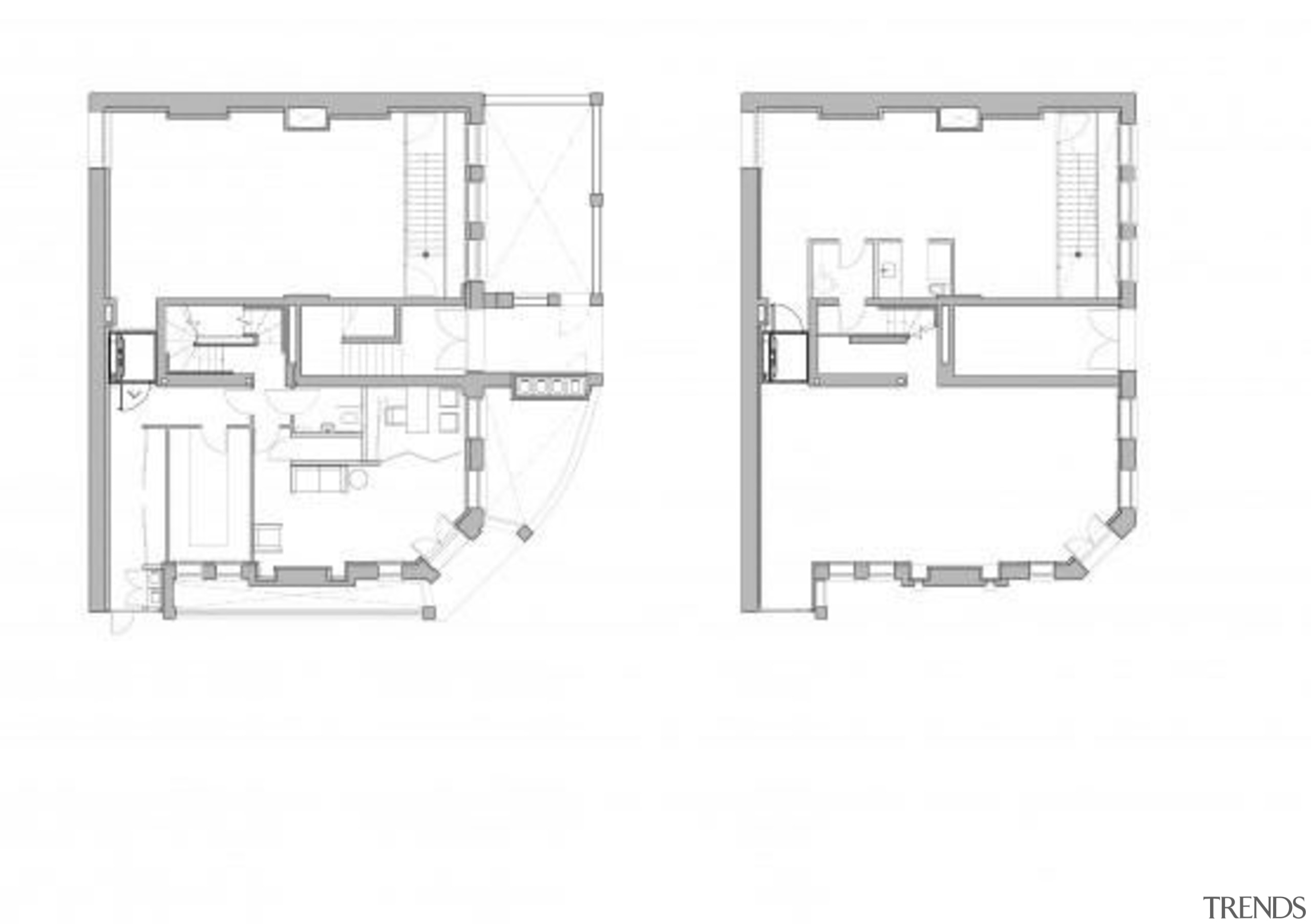
The South Fulham Conservative Club lies unoccupied close to Parson’s Green. The site has seen the upper storeys transformed into residential apartments and the old hall has been demolished and replaced with four townhouses.The final part of the development is the refurbishment of the ground and basement floors for use as a childcare nursery. Currently an empty shell, the project begins from scratch with new entrance lobbies, kitchens, staff facilities, play and sleep rooms. Three new circulation and escape stairs and a lift have been installed, and one half of the building has been gutted to install three floors to increase its floor area.Externally the courtyards are playspaces for the children.Client: South West London Nursery CompanyLocation: Fulham, London, United KingdomConstruction cost: Approximately £500,000Area: 450m²Programme: Completed 2013

Home kitchen bathroom commercial design


Latest Post

08 Mar, 2026

08 Mar, 2026

08 Mar, 2026

We know the Specialists

Latest Book

TRENDS MINI COVER 4201 -

Home Kitchen Bathroom Design 

Read More