Facebook
Tweet
Help
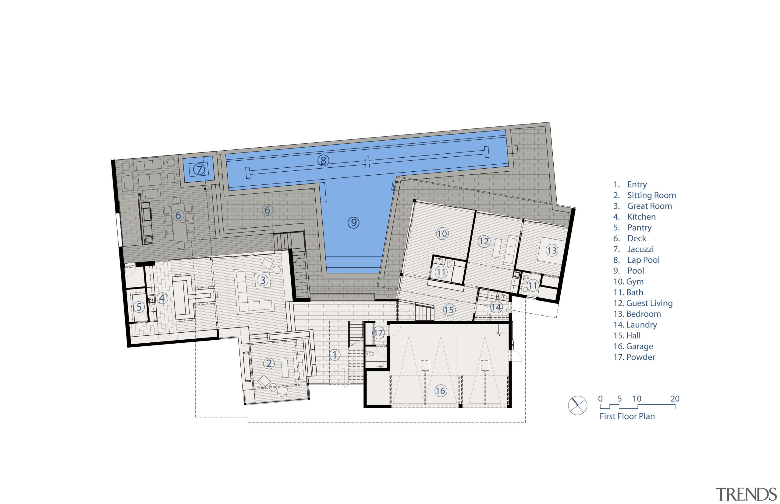
Ground floor plan. (US, first floor) - Oasis of cool -
Associated Post
Oasis of cool
Trendsideas
Home kitchen bathroom commercial design
Latest Post
9 tile shapes and finishes that think outside the square
Reflection and repose
Curves upon curves
We know the Specialists
Latest Book
More Books >
Home Kitchen Bathroom DesignÂ