Facebook
Tweet
Help
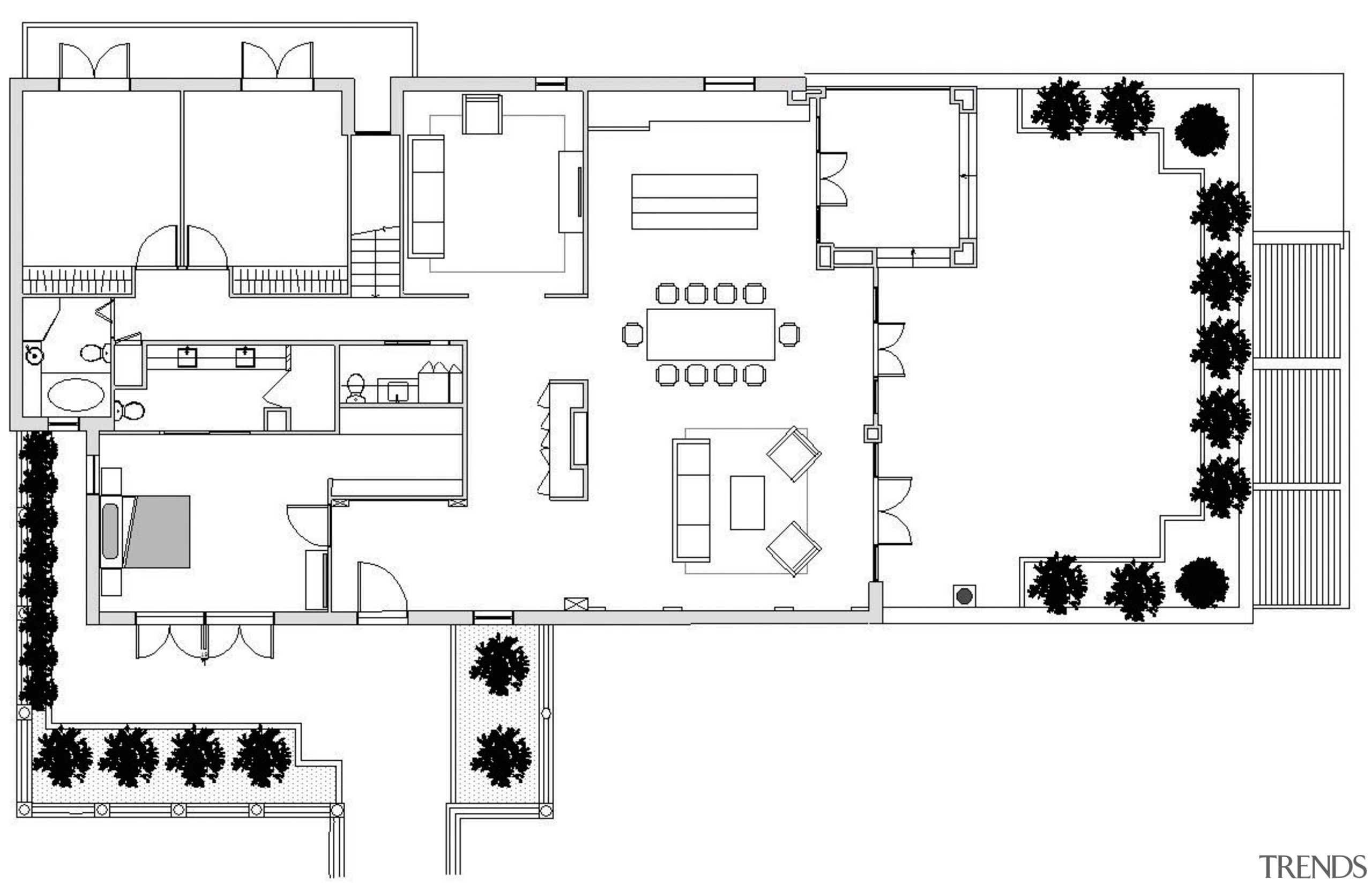
Image of updated plans which includes the balconies.
Associated Post
Modern classic
Trendsideas
Home kitchen bathroom commercial design
Latest Post
HuM Architects wins 2026 TIDA Australia Architect-designed Kitchen of the Year
Ultraspace wins 2026 TIDA Australia Designer Kitchen of the Year
Atelier Jones Design wins 2026 TIDA New Zealand Architectural Designer Kitchen of the Year
We know the Specialists
Latest Book
More Books >
Home Kitchen Bathroom DesignÂ