Facebook

Tweet

Help

Image 22 of 24

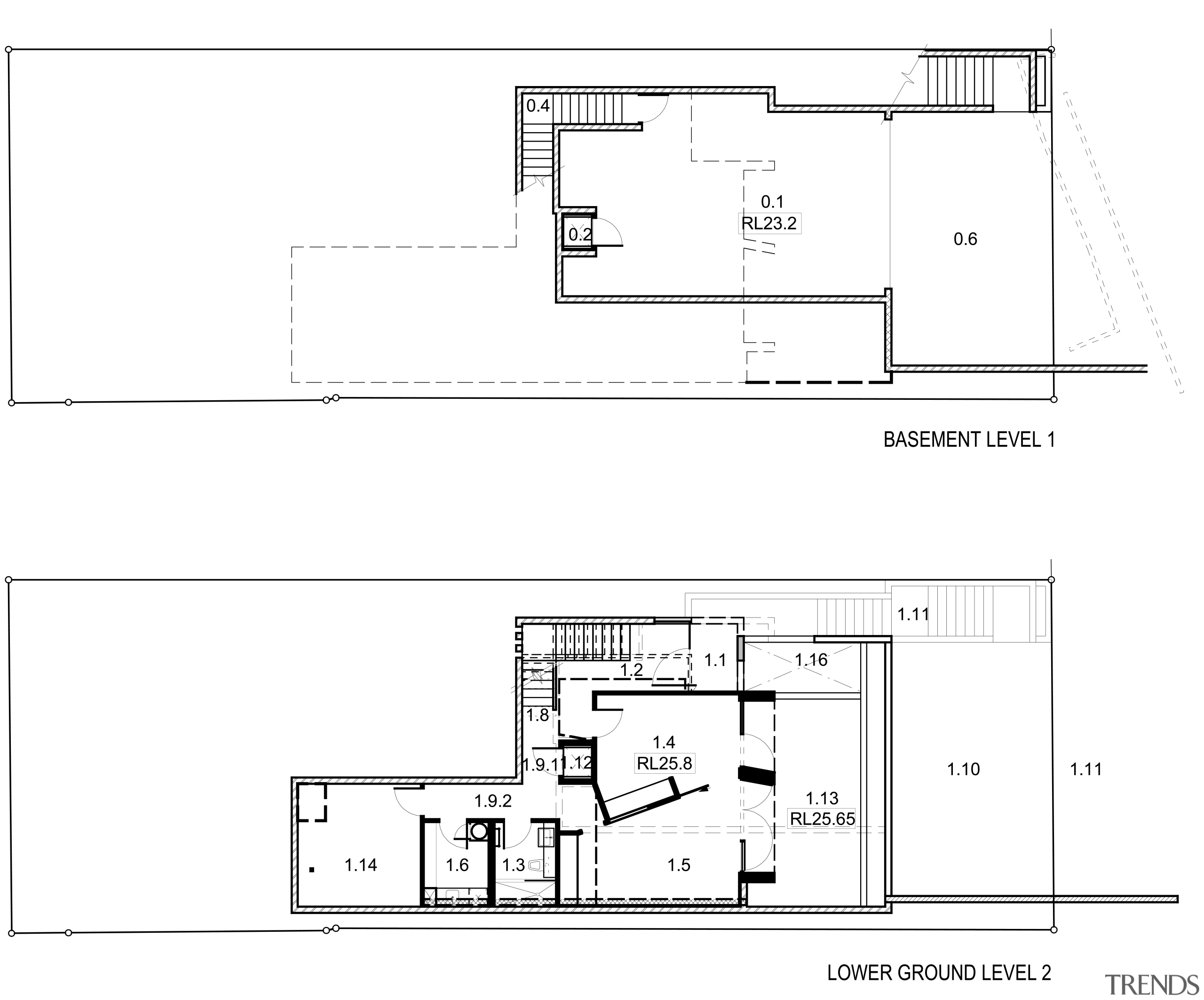
Floor Plans

Floor Plans - Floor Plans - angle | area | black and white | design | diagram | drawing | floor plan | font | line | plan | product design | technical drawing | text | white

Associated Post

07 Jan, 2010

Home kitchen bathroom commercial design


Latest Post

24 May, 2026

24 May, 2026

24 May, 2026

We know the Specialists

Latest Book

TRENDS MINI COVER 4202 -

Home Kitchen Bathroom Design 

Read More