Save

Facebook

Tweet

Email

Help

This home was designed by Mason & Wales architecture, area, design, diagram, drawing, floor plan, line, plan, product design, square, structure, text, white
Share Tweet Help

advertisement

Image 11 of 13

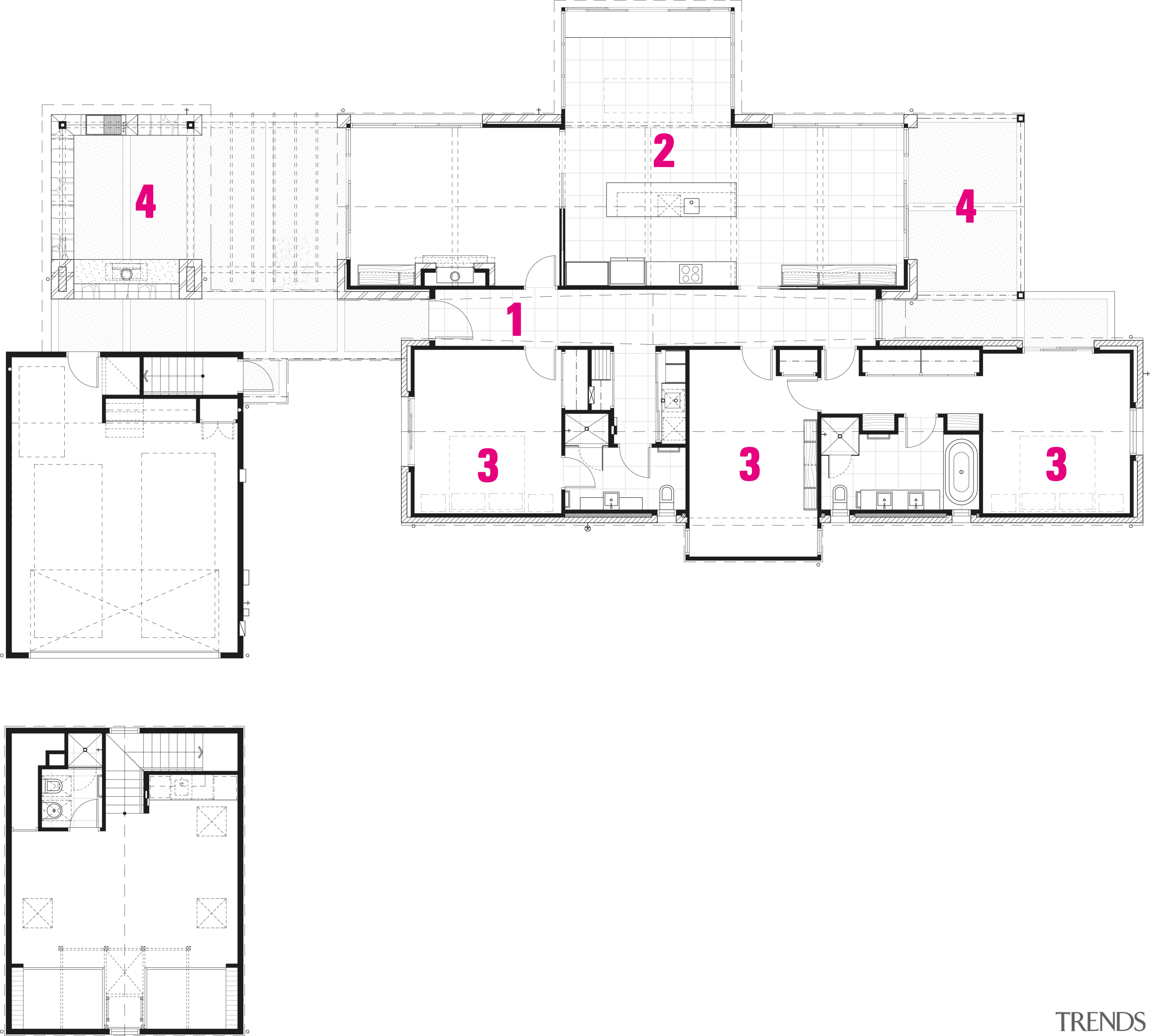
This home was designed by Mason & Wales Architects. Here is a floor plan of the site.

This home was designed by Mason & Wales Architects. Here is a floor plan of the site.

Associated Post

27 Dec, 2011

Home kitchen bathroom commercial design


Latest Post

09 Nov, 2025

09 Nov, 2025

09 Nov, 2025

We know the Specialists

Latest Book

TRENDS MINI COVER 4105 -

New Home | Kitchen | Bathroom | Renovation | Interiors | Outdoor Living 

Read More