Facebook

Tweet

Help

Image 2 of 11

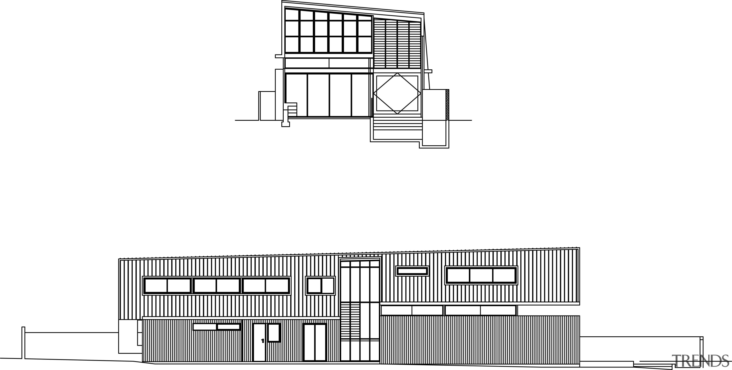
View of architectural plans for this renovated home.

View of architectural plans for this renovated home.

Associated Post

30 Oct, 2010

Home kitchen bathroom commercial design


Latest Post

29 Mar, 2026

29 Mar, 2026

29 Mar, 2026

We know the Specialists

Latest Book

TRENDS MINI COVER 4201 -

Home Kitchen Bathroom Design 

Read More