Facebook
Tweet
Help
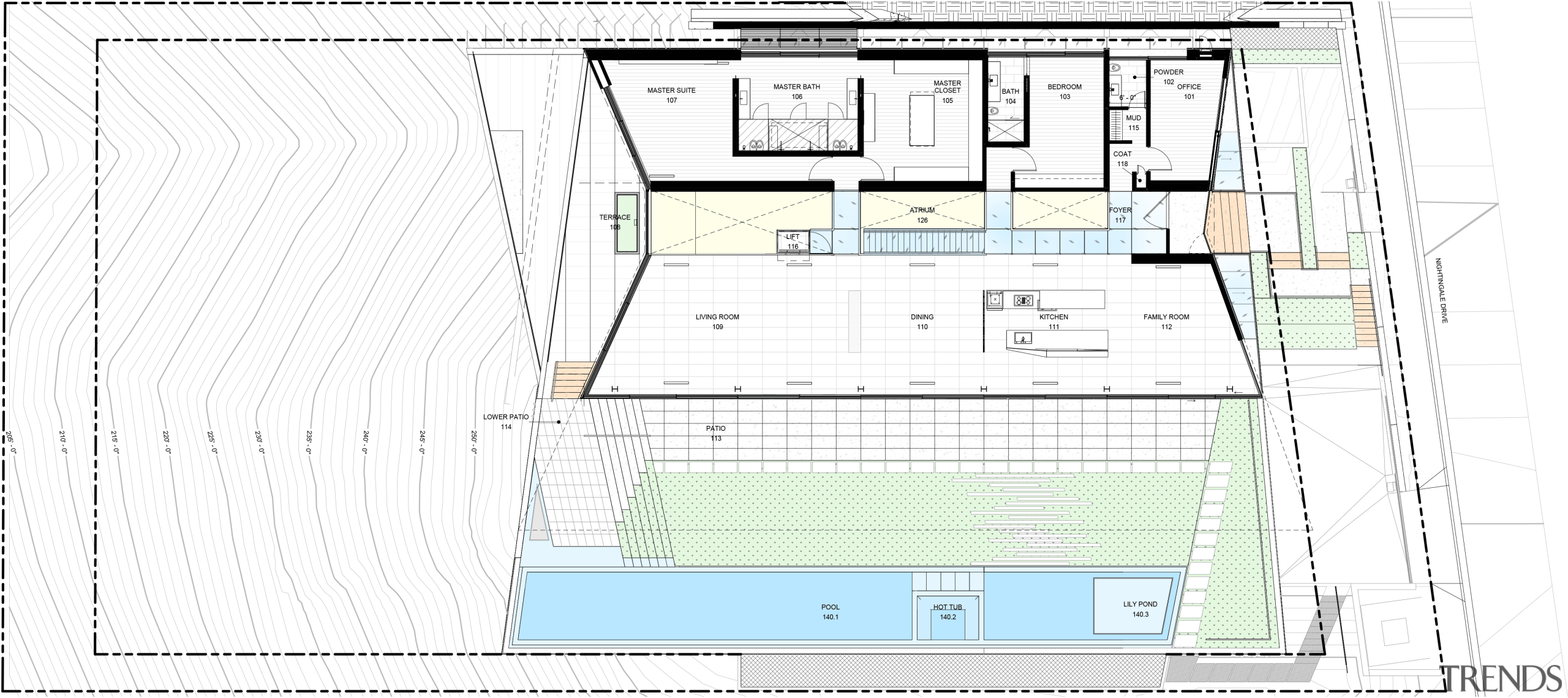
Upper floor plan - Going underground -
Associated Post
Going underground
Trendsideas
Home kitchen bathroom commercial design
Latest Post
Reflection and repose
9 tile shapes and finishes that think outside the square
White cloud, blue sky
We know the Specialists
Latest Book
More Books >
Home Kitchen Bathroom DesignÂ