Facebook

Tweet

Help

Image 9 of 10

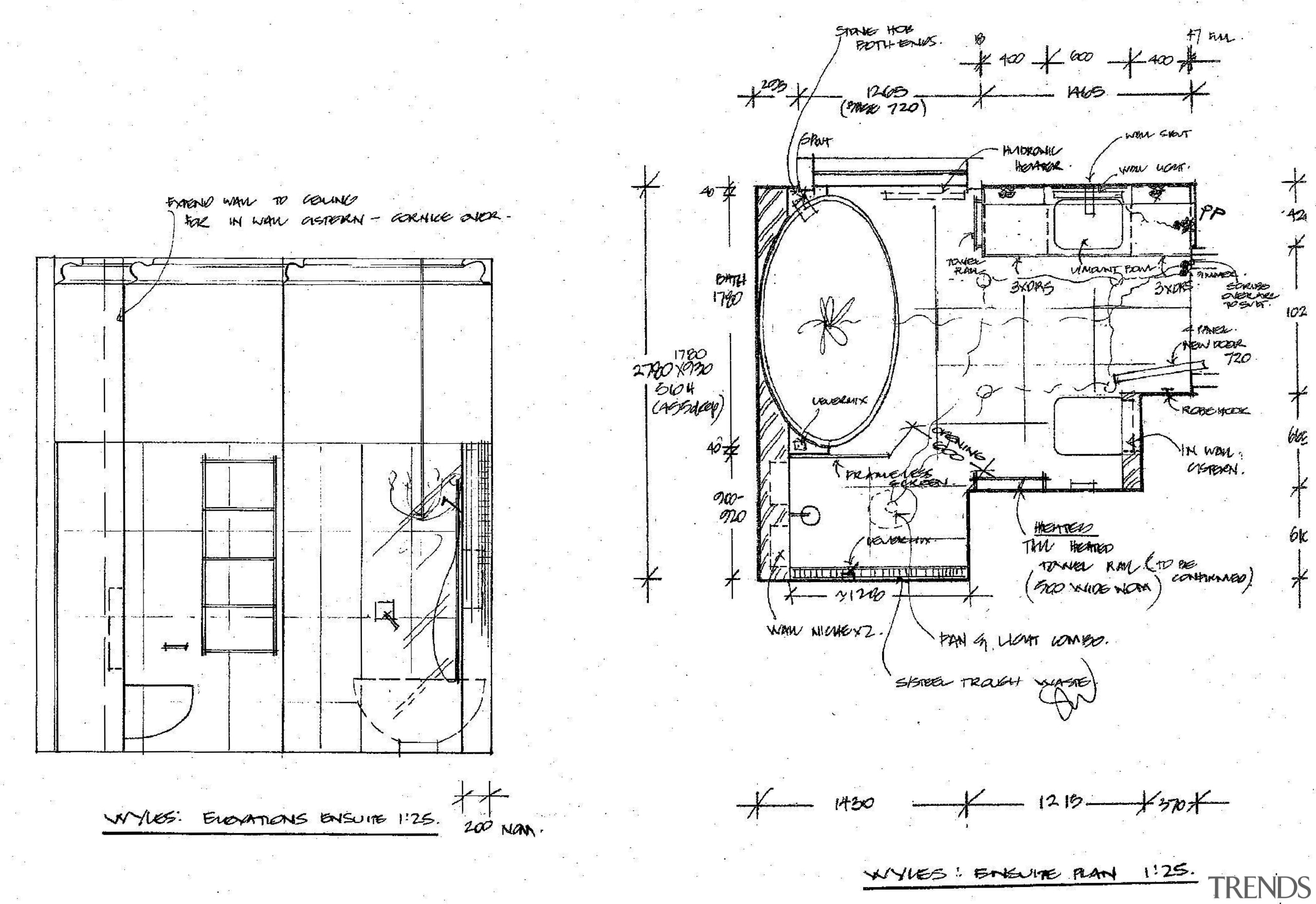
Floor plan.

Floor plan. - Floor plan. - angle | area | artwork | black and white | design | diagram | drawing | line | line art | plan | product design | technical drawing | white

Associated Post

19 Jul, 2012

Home kitchen bathroom commercial design


Latest Post

22 Feb, 2026

22 Feb, 2026

22 Feb, 2026

We know the Specialists

Latest Book

TRENDS MINI COVER 4201 -

Home Kitchen Bathroom Design 

Read More