Facebook

Tweet

Help

Image 10 of 12

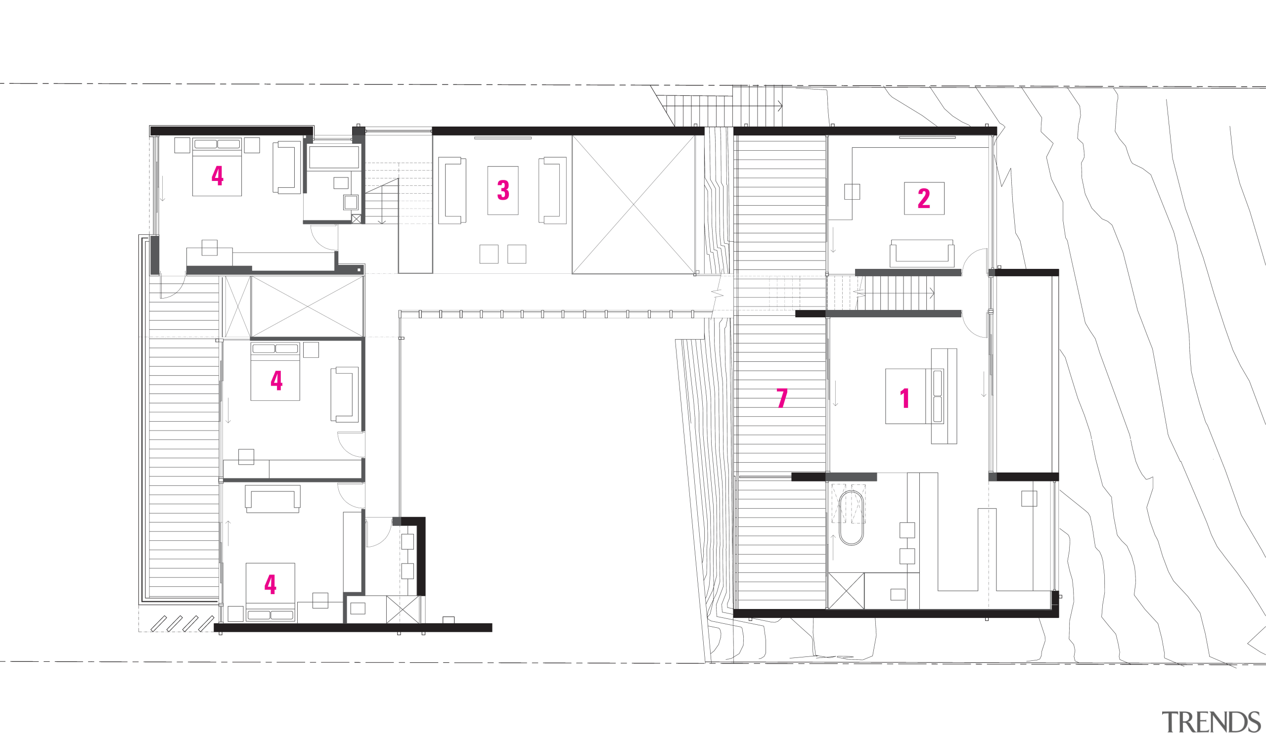
Floor plan of home.

Floor plan of home. - Floor plan of home. - architecture | area | design | diagram | elevation | facade | floor plan | line | plan | product | product design | schematic | structure | white

Associated Post

05 Aug, 2011

Home kitchen bathroom commercial design


Latest Post

29 Mar, 2026

29 Mar, 2026

29 Mar, 2026

We know the Specialists

Latest Book

TRENDS MINI COVER 4201 -

Home Kitchen Bathroom Design 

Read More