Facebook

Tweet

Help

Image 1 of 11

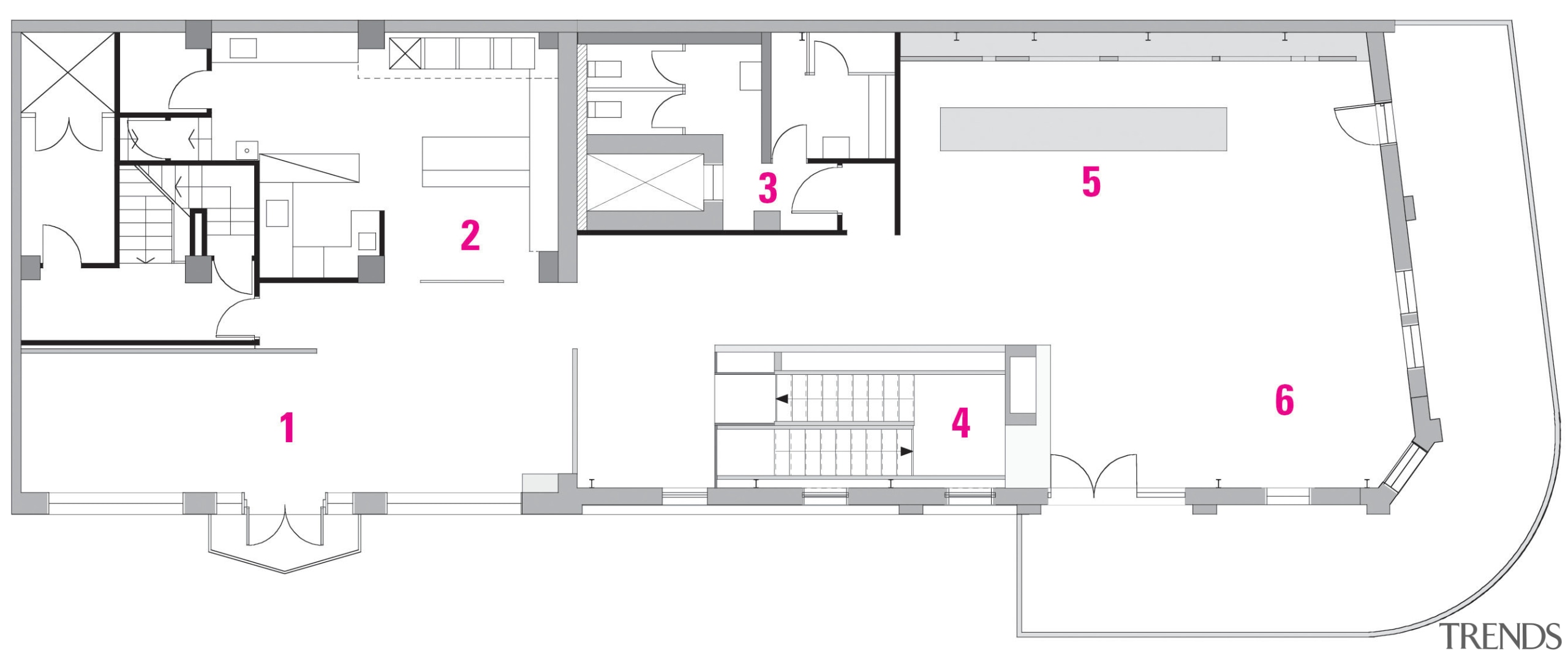
Floor plan of restaurant.

Floor plan of restaurant. - Floor plan of restaurant. - architecture | area | design | diagram | drawing | floor plan | line | plan | product design | structure | white

Associated Post

17 Dec, 2004

Home kitchen bathroom commercial design


Latest Post

26 Apr, 2026

26 Apr, 2026

26 Apr, 2026

We know the Specialists

Latest Book

TRENDS MINI COVER 4201 -

Home Kitchen Bathroom Design 

Read More