Facebook

Tweet

Help

Image 8 of 8

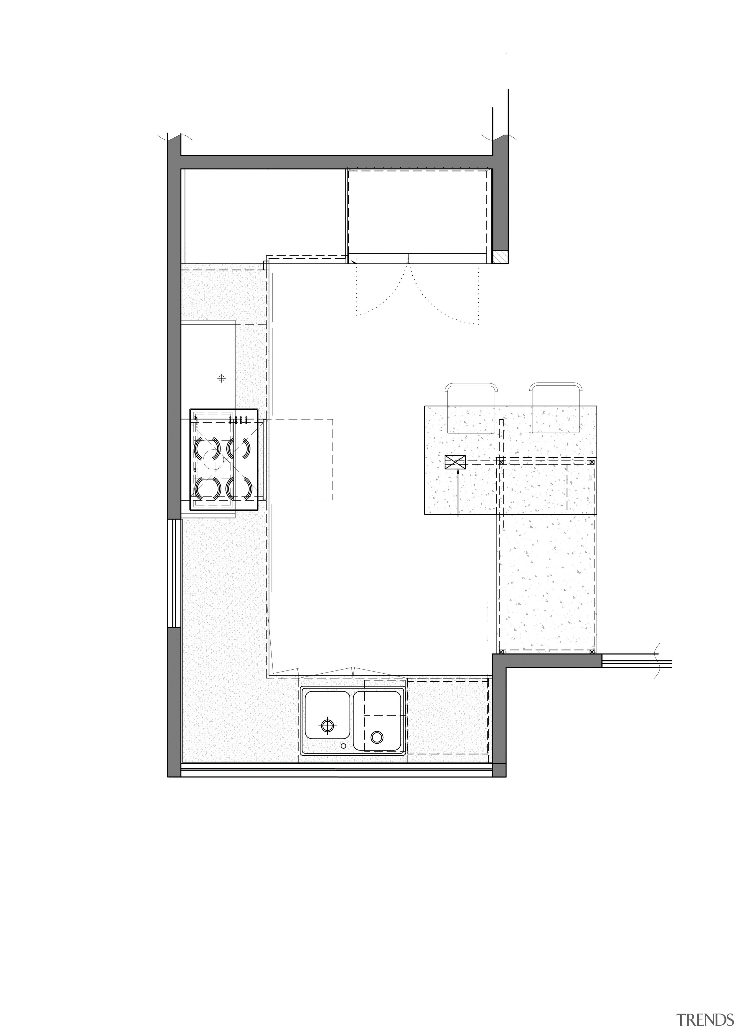
plan of the kitchen showing how cooking, preparation and eating areas are set well apart.

plan of the kitchen showing how cooking, preparation and eating areas are set well apart.

Associated Post

30 Nov, 2007

Home kitchen bathroom commercial design


Latest Post

26 Apr, 2026

26 Apr, 2026

26 Apr, 2026

We know the Specialists

Latest Book

TRENDS MINI COVER 4201 -

Home Kitchen Bathroom Design 

Read More