Facebook

Tweet

Help

Image 2 of 20

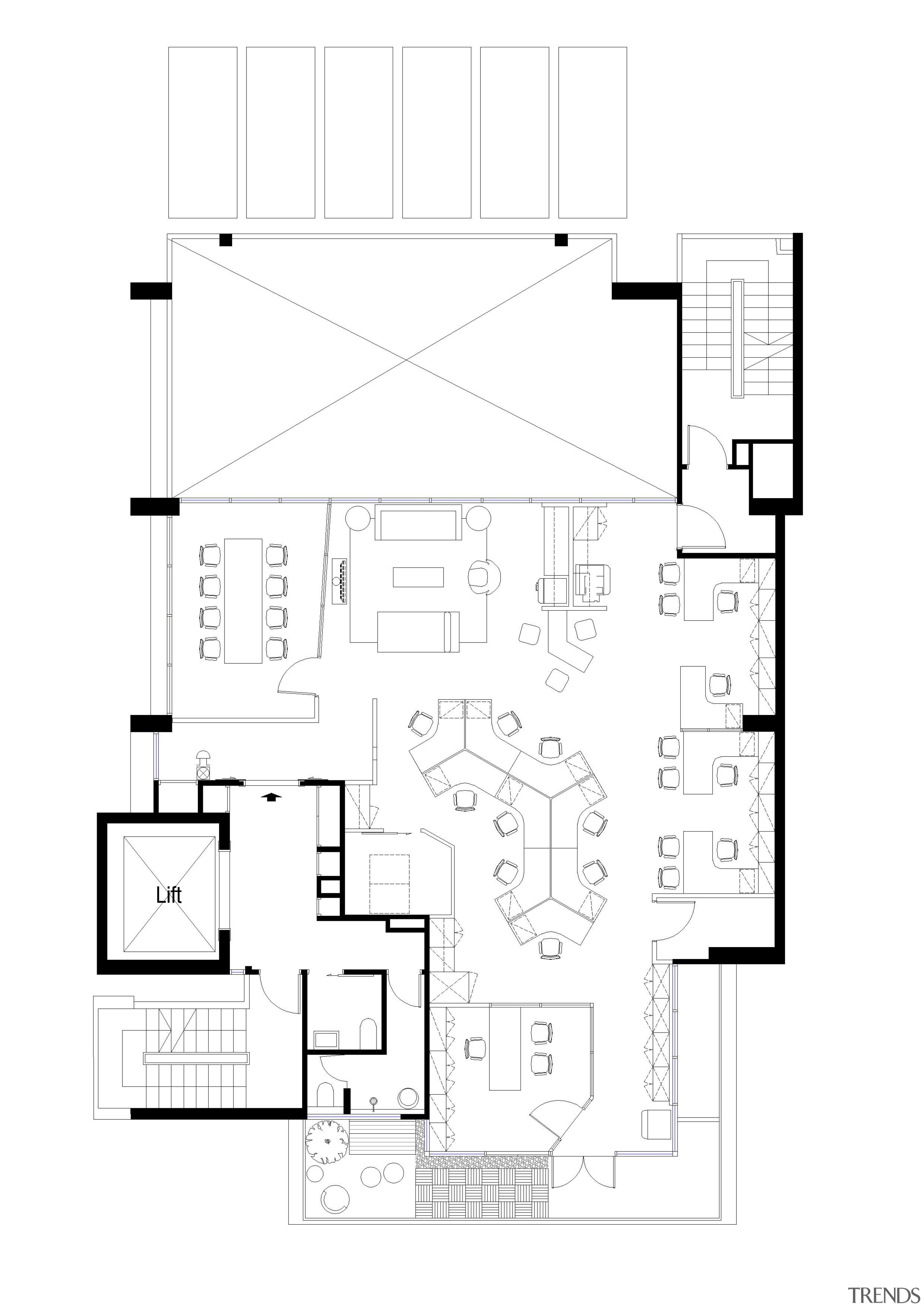
Floor plan for Warners Music shows generous connection to outdoor areas.

Floor plan for Warners Music shows generous connection to outdoor areas.

Associated Post

02 Apr, 2014

Home kitchen bathroom commercial design


Latest Post

24 May, 2026

24 May, 2026

24 May, 2026

We know the Specialists

Latest Book

TRENDS MINI COVER 4202 -

Home Kitchen Bathroom Design 

Read More