Facebook

Tweet

Help

Image 10 of 10

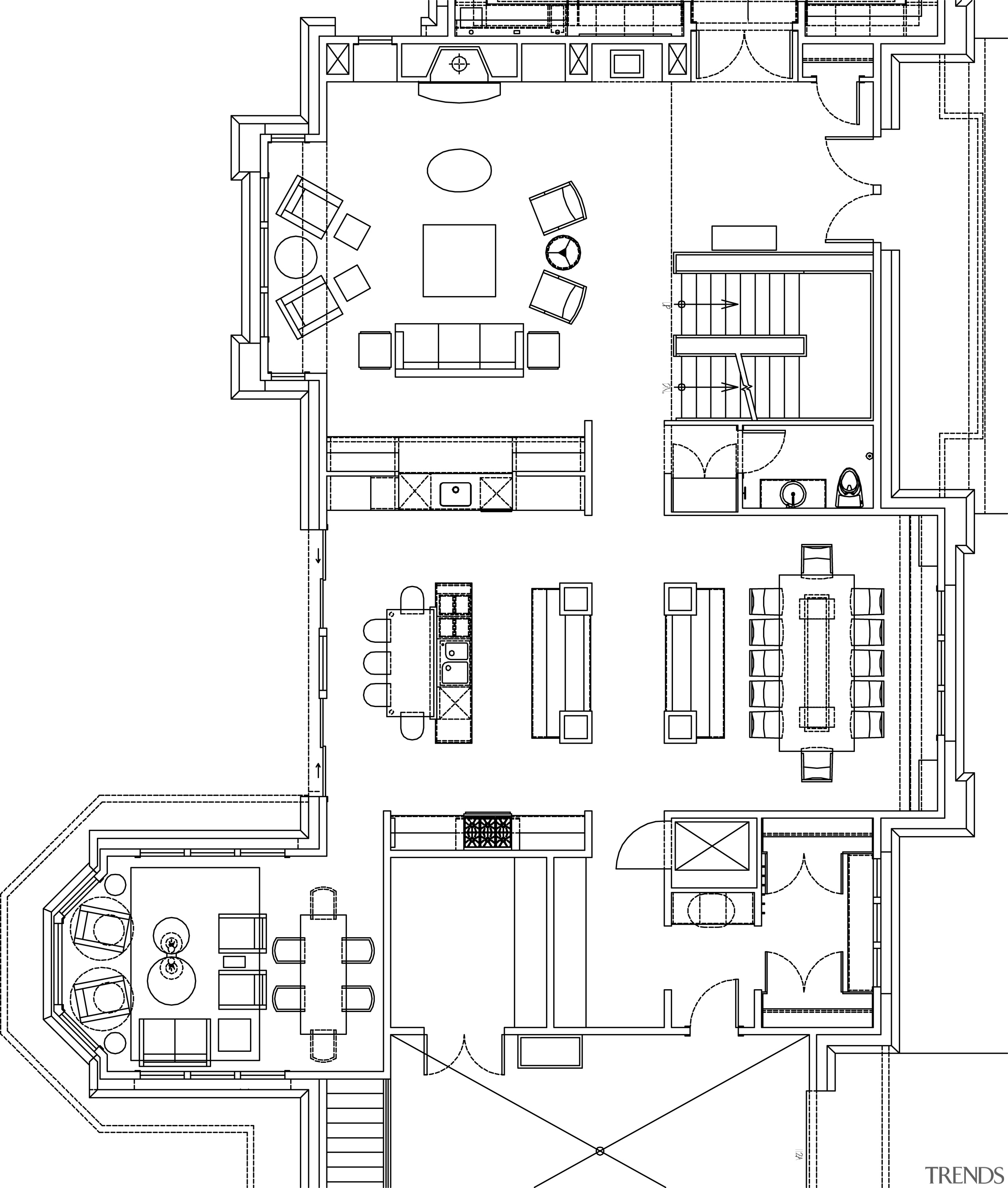
This plan of a kitchen designed by by Mary Jane Pappas and Patricia Undlin. shows the corridor between kitchen and dining room, shaped by two banks of cabinetry, one looking into each room.

This plan of a kitchen designed by by Mary Jane Pappas and Patricia Undlin. shows the corridor between kitchen and dining room, shaped by two banks of cabinetry, one looking into each room.

Home kitchen bathroom commercial design


Latest Post

22 Mar, 2026

22 Mar, 2026

22 Mar, 2026

We know the Specialists

Latest Book

TRENDS MINI COVER 4201 -

Home Kitchen Bathroom Design 

Read More