Facebook

Tweet

Help

Image 17 of 19

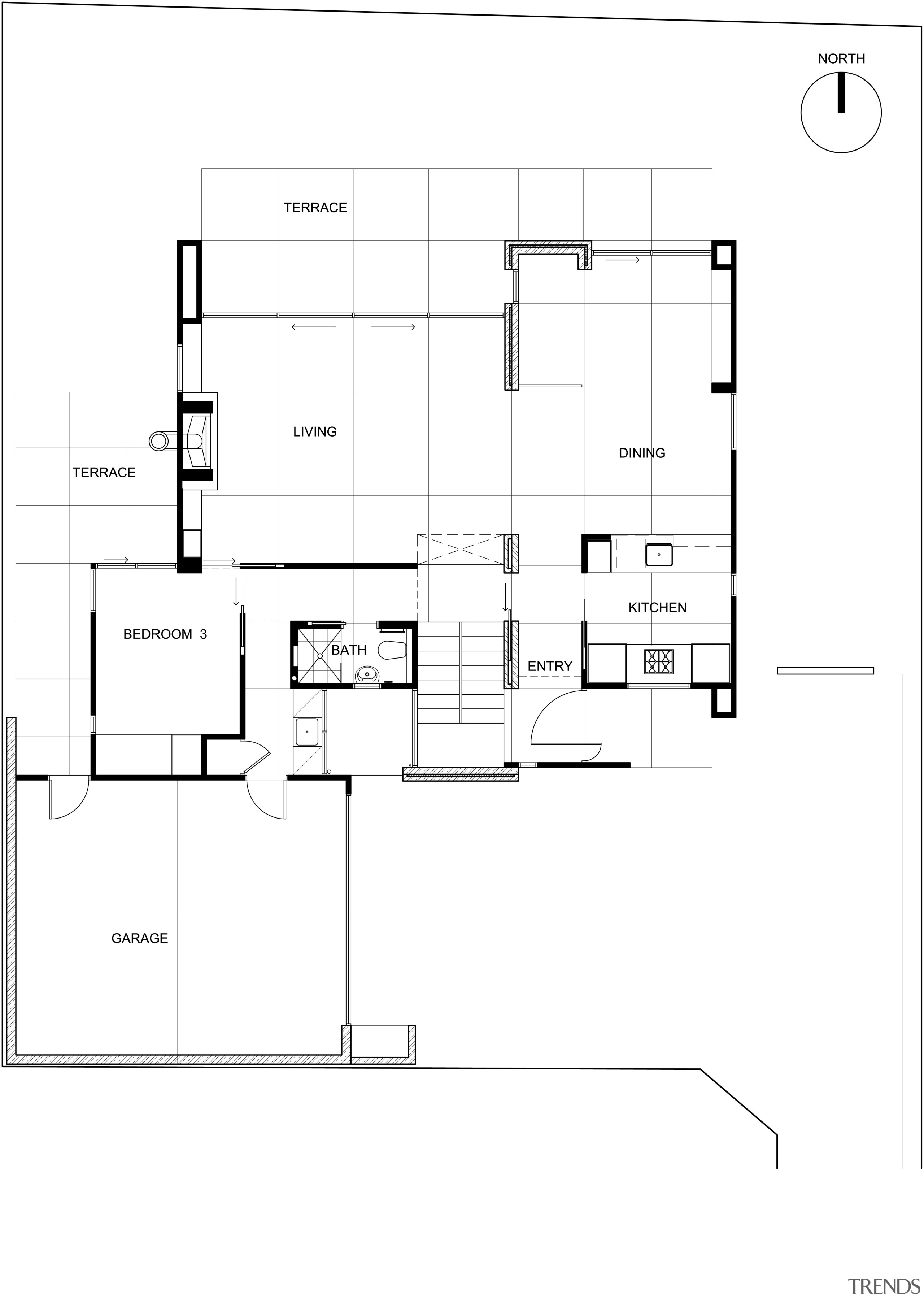
Architectural plans

Architectural plans - Architectural plans - angle | area | black and white | design | diagram | drawing | floor plan | font | line | plan | product design | technical drawing | text | white

Associated Post

05 Oct, 2009

Home kitchen bathroom commercial design


Latest Post

24 May, 2026

24 May, 2026

24 May, 2026

We know the Specialists

Latest Book

TRENDS MINI COVER 4202 -

Home Kitchen Bathroom Design 

Read More