Facebook
Tweet
Help
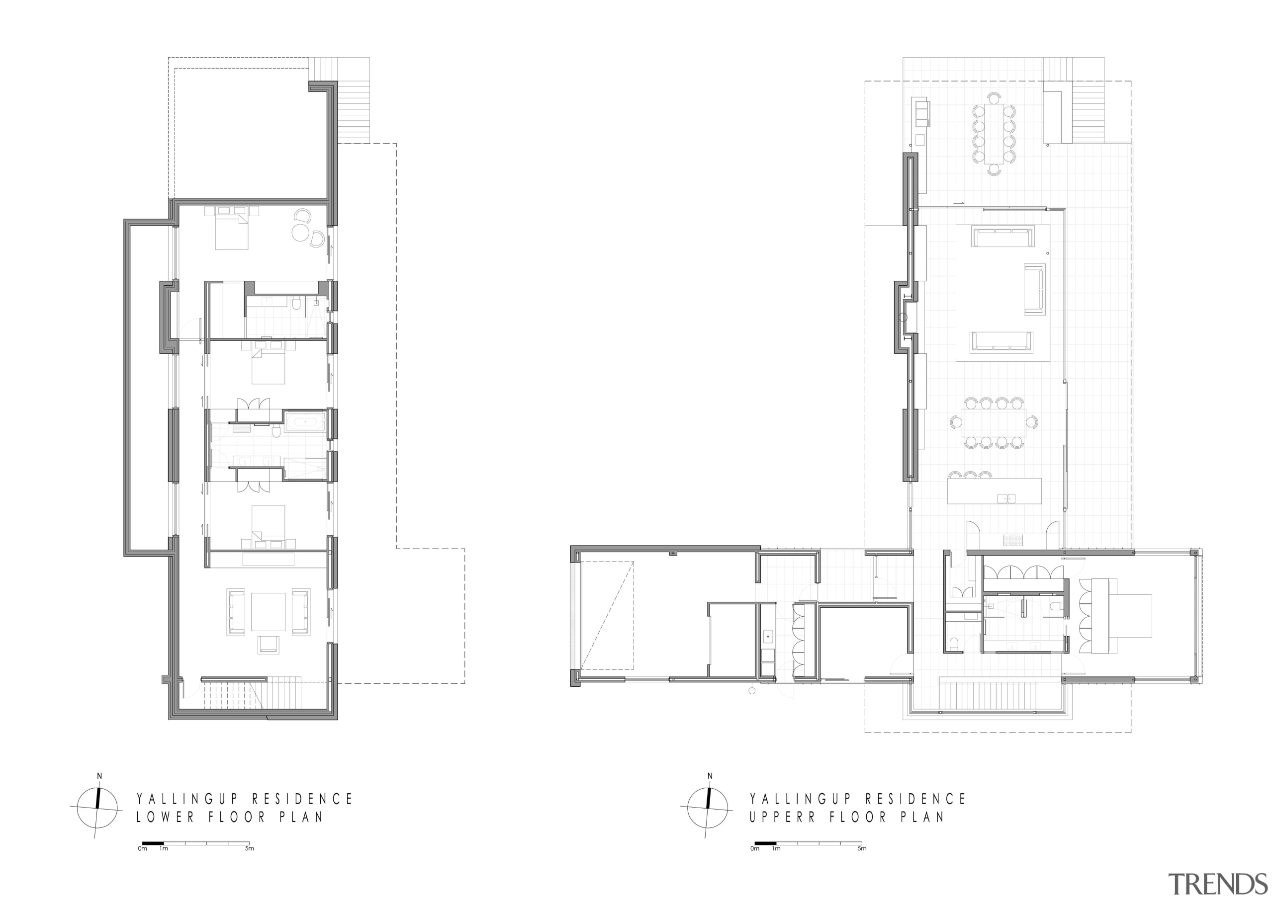
This house was designed by Tim Wright AIA of Wright Feldhusen Architects. A floorplan of the house.
Associated Post
Commanding perspective - Innovative glass holiday home by Wright Feldhusen Architects
Trendsideas
Home kitchen bathroom commercial design
Latest Post
Reflection and repose
9 tile shapes and finishes that think outside the square
Door, what door?
We know the Specialists
Latest Book
More Books >
Home Kitchen Bathroom DesignÂ