Facebook

Tweet

Help

Image 18 of 22

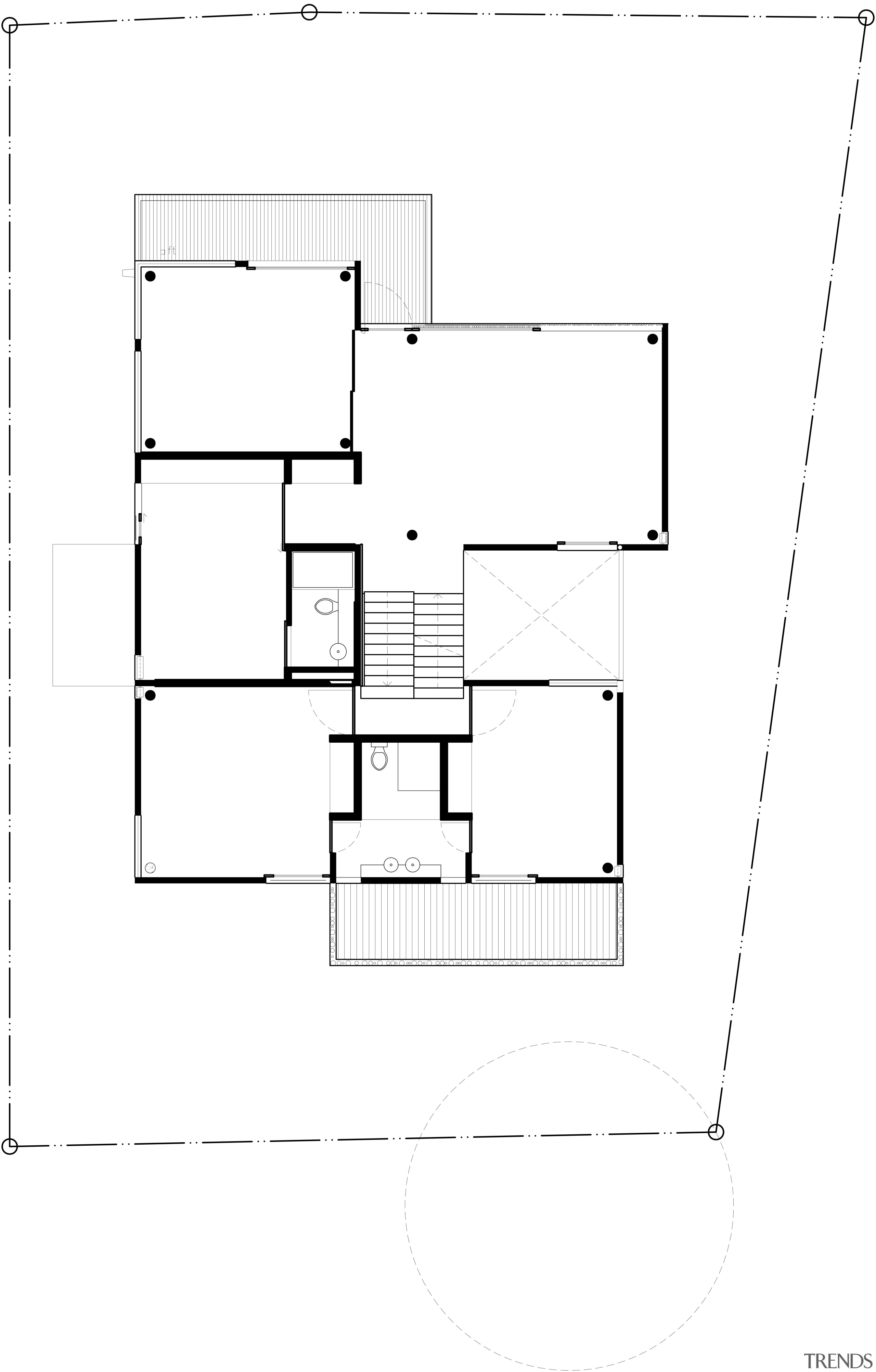
This home was designed with environmental principals in mind by John Bulcock of Design Unit Sdn Bhd. Here is a view of a floor plan.

This home was designed with environmental principals in mind by John Bulcock of Design Unit Sdn Bhd. Here is a view of a floor plan.

Home kitchen bathroom commercial design


Latest Post

08 Mar, 2026

08 Mar, 2026

08 Mar, 2026

We know the Specialists

Latest Book

TRENDS MINI COVER 4201 -

Home Kitchen Bathroom Design 

Read More