Facebook

Tweet

Help

Image 12 of 13

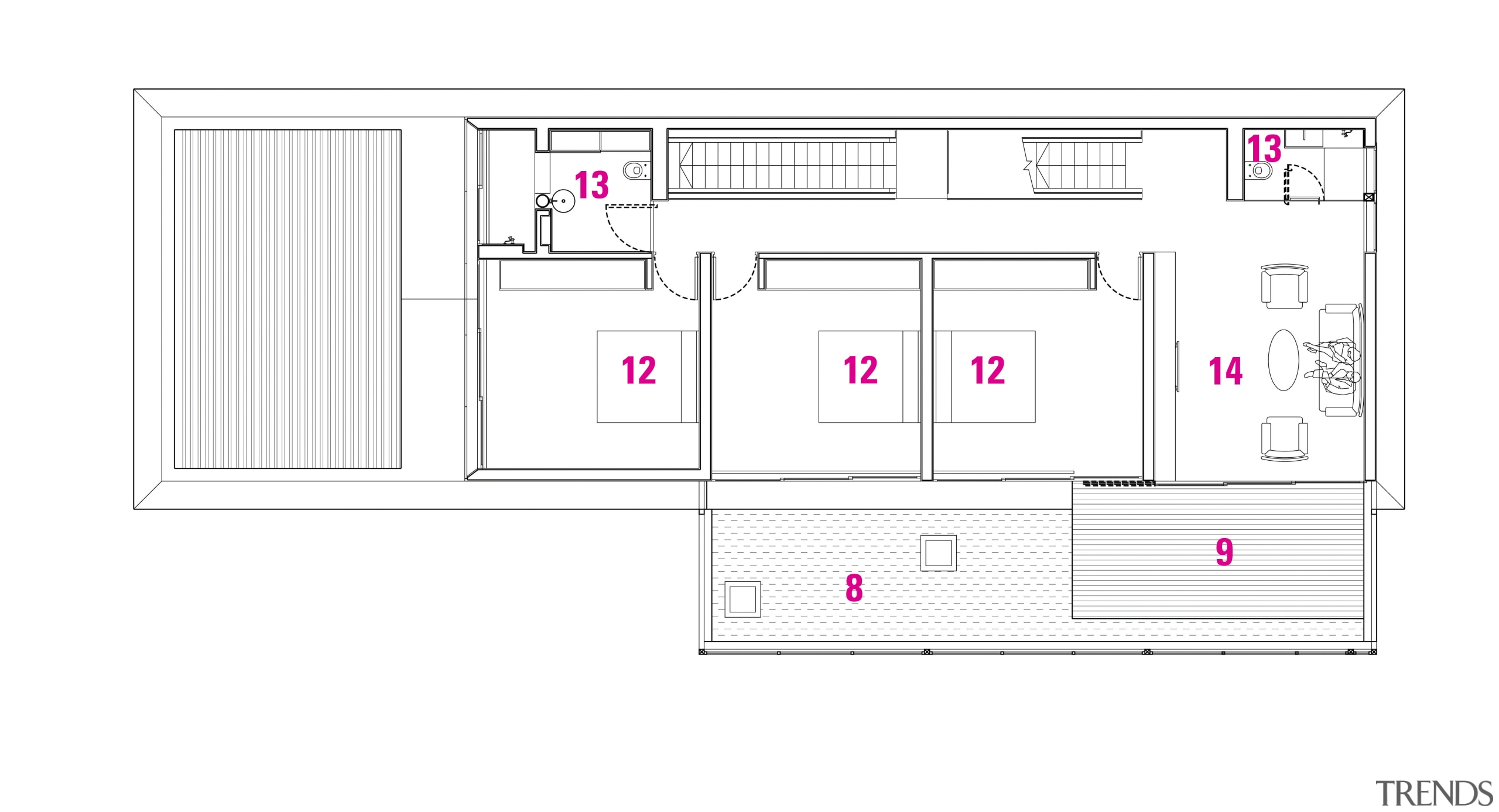
1 Driveway. 2 Living. 3 Dining. 4 Dry kitchen. 5 Wet kitchen. 6 Laundry 7 Store. 8 Pond. 9 Deck. 10 Study. 11 Powder room. 12 Bedrooms. 13 Bathrooms. 14 Family room.

1 Driveway. 2 Living. 3 Dining. 4 Dry kitchen. 5 Wet kitchen. 6 Laundry 7 Store. 8 Pond. 9 Deck. 10 Study. 11 Powder room. 12 Bedrooms. 13 Bathrooms. 14 Family room.

Associated Post

06 Nov, 2007

Home kitchen bathroom commercial design


Latest Post

29 Mar, 2026

29 Mar, 2026

29 Mar, 2026

We know the Specialists

Latest Book

TRENDS MINI COVER 4201 -

Home Kitchen Bathroom Design 

Read More