Facebook

Tweet

Help

Image 17 of 18

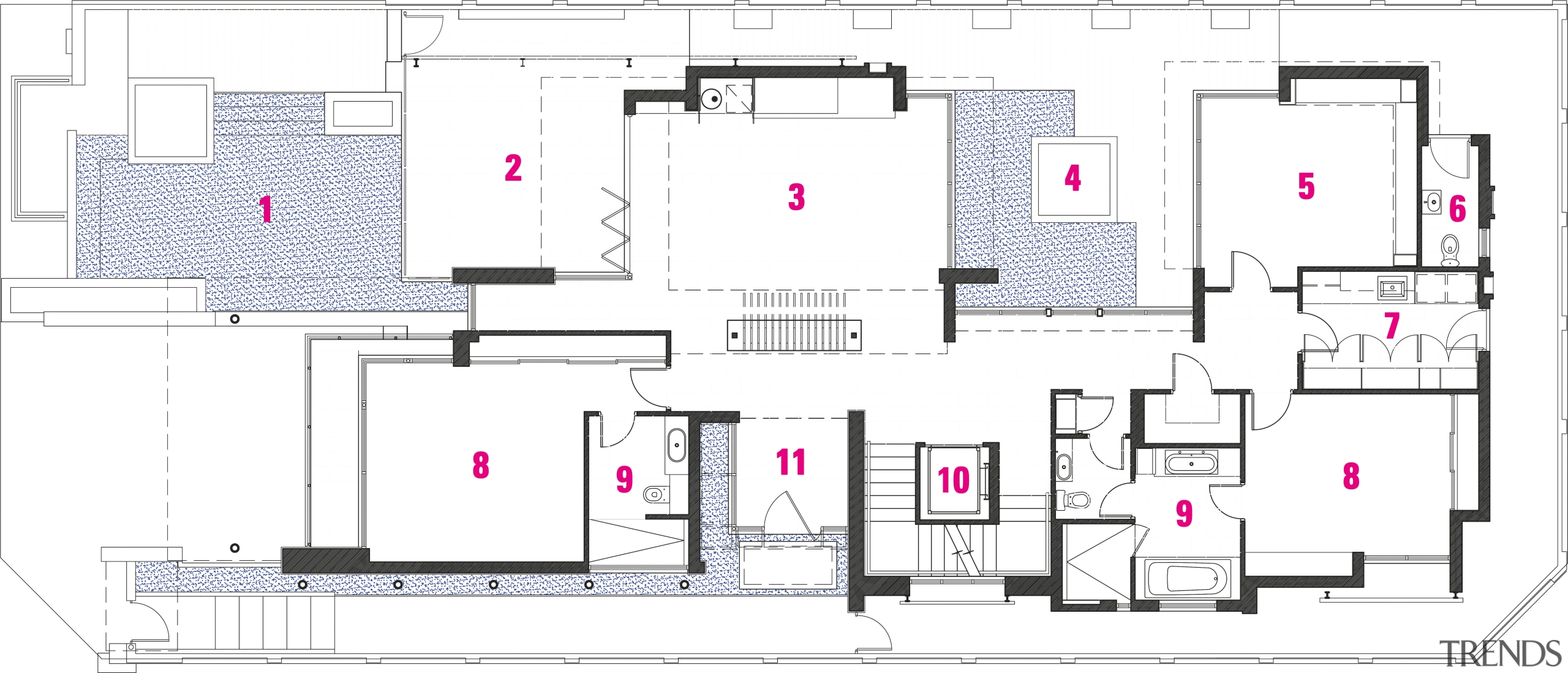
This home was designed by Jason Saunders of Arc Seven.1. Here is a floor plan.

This home was designed by Jason Saunders of Arc Seven.1. Here is a floor plan.

Associated Post

07 Feb, 2012

Home kitchen bathroom commercial design


Latest Post

29 Mar, 2026

29 Mar, 2026

29 Mar, 2026

We know the Specialists

Latest Book

TRENDS MINI COVER 4201 -

Home Kitchen Bathroom Design 

Read More