Facebook

Tweet

Help

Image 12 of 12

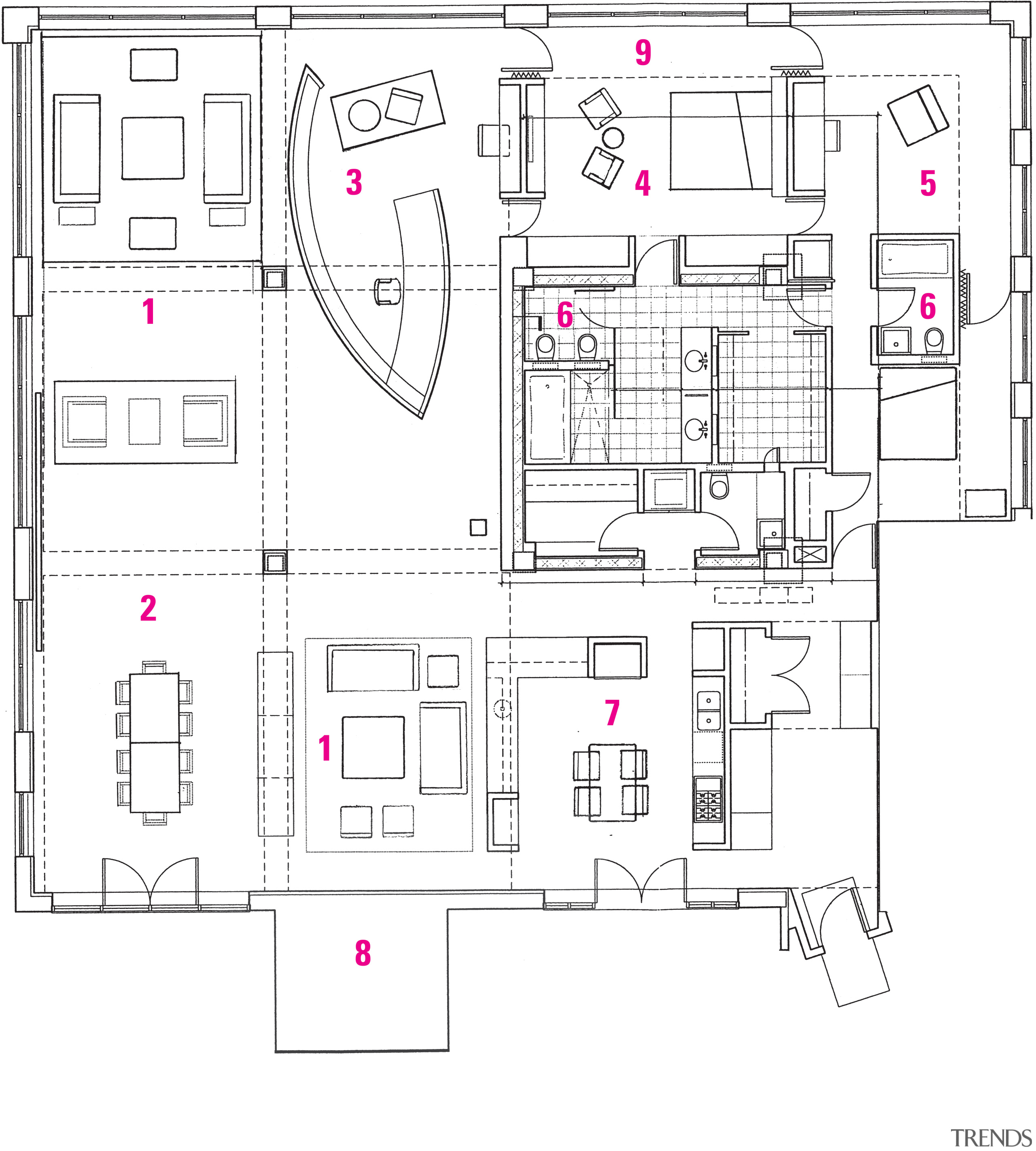
Legend plan of the entire house.

Legend plan of the entire house. - Legend plan of the entire house. - architecture | area | design | diagram | drawing | floor plan | line | plan | product design | residential area | white

Associated Post

14 Jun, 2005

Home kitchen bathroom commercial design


Latest Post

24 May, 2026

24 May, 2026

24 May, 2026

We know the Specialists

Latest Book

TRENDS MINI COVER 4202 -

Home Kitchen Bathroom Design 

Read More