Facebook

Tweet

Help

Image 19 of 21

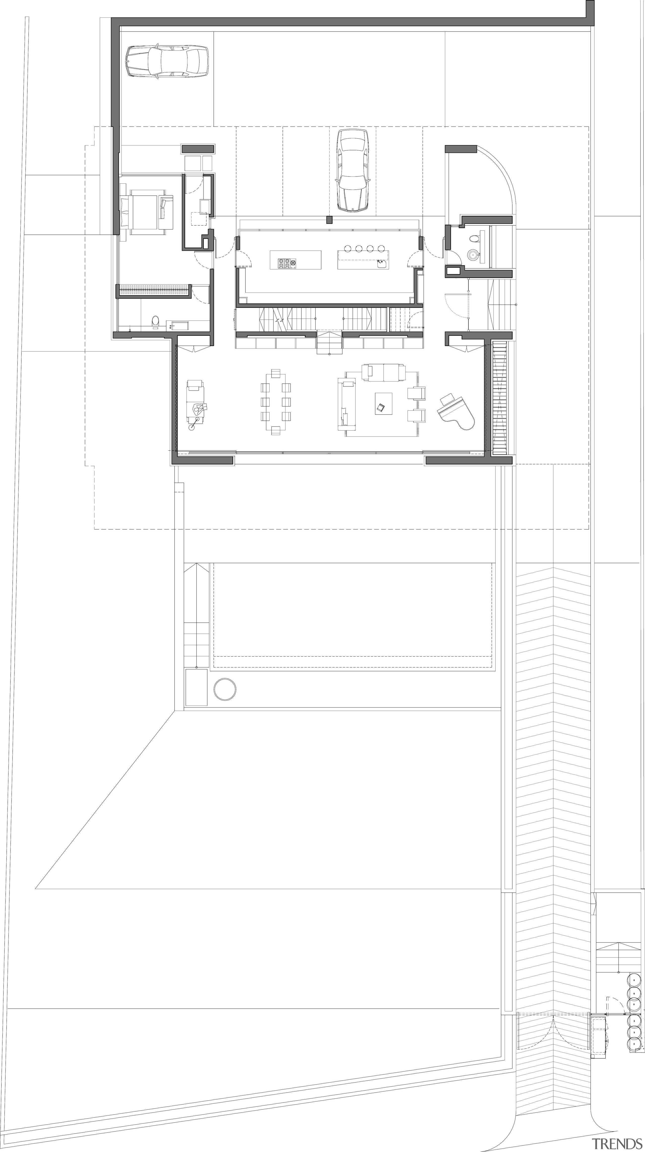
The floor plans of the ground and first floors of this city house designed by Ong & Ong show practical connections with a sense of the dramatic. The upstairs plan shows the central spiral staircase and open-air courtyard.

The floor plans of the ground and first floors of this city house designed by Ong & Ong show practical connections with a sense of the dramatic. The upstairs plan shows the central spiral staircase and open-air courtyard.

Associated Post

19 Jun, 2013

Home kitchen bathroom commercial design


Latest Post

24 May, 2026

24 May, 2026

24 May, 2026

We know the Specialists

Latest Book

TRENDS MINI COVER 4202 -

Home Kitchen Bathroom Design 

Read More